탄소섬유는 고경량, 고인장강도, 고탄성, 내부식 특성이 요구되는 항공우주산업을 비롯하여, 스포츠분야(골프, 낚싯대 등)에 이르기까지 다양하게 이용되어 온 석유화학 관련 제품으로써
인장강도가 강철의 10배 이상 되는 특성을 이용하여 지진이 많이 발생하는 일본에서 토목, 건축 구조물의 보강재로 연구 개발되었다.
탄소섬유 보강공법은 탄소섬유를 일방향으로 배열, 시트(천)화시켜 구조 내력이 부족한 콘크리트(기둥, 보, 슬래브 등) 표면에 에폭시 수지로
함침, 접착, 경화시키는 공정을 통해 콘크리트와 일체화시켜 구조내력을 증강시키는 공법으로 기존의 철판 보강공법 등에 비하여 고강도, 고내구성 등을 발현하는 뛰어난 최첨단 공법이다.

철판 보강 공법은 콘크리트 슬래브 하면 또는 보 하면에 강판을 에폭시계 접착제로 부착시켜 콘크리트 구조물과 일체화하여 내하력을 증대시키는 보강 공법이다. 일반적으로 하부 슬래브와 보에 내하력 증대를 위해 강판을 부착하여 중앙부에서는 휨 보강을, 단부에는 전단 보강을 실시한다. 이 공법은 강력한 부착력을 가지며 경화 후 수축이 없고 휨모멘트 또는 전단력에 대한 초과 허용응력을 충당할 수 있다. 하지만 보강 시 철판으로 인해 모체에 사하중이 증가하고 앵커 등에 의한 손상이 발생할 수 있으며 구조체와 강판 사이의 박리와 강판의 부식 등의 문제를 가지고 있는 공법이므로 시공·사용 상의 주의가 필요한 공법이다.

오래되거나, 부실한 건물의 내력벽을 일부분 철거하고 H빔을 시공하고, 에폭시를 주입하여 다소 떨어졌던 건물의 내력도를 높여줌으로써 건물을 안전하게 보호하는 구조보강공법이다.


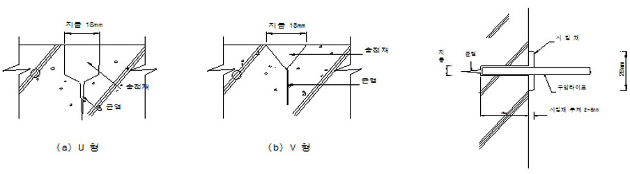
콘크리트 구조체에 관통균열이 발생하여 누수되고 있는 상태의 비구조 균열을 보수하는 공법으로서, 발포성 폴리우레탄수지를 균열에 주입하면 균열내부의 물과 반응하여 발포되면서 벌집모양의 발포체를 형성하게 되는데, 이때 체적팽창 및 모체콘크리트와의 접착력을 통해 효과적으로 누수를 밀폐 차단시키는 공법이다. 또한 보수효과의 장기적인 안정성을 위하여 위 지수 공정에 이어서 탄성 에폭시 수지 V컷트(또는 U컷트) 씰링 및 마감 라이닝 공정을 2차적으로 실시하는 것이 일반적이다.
철근 콘크리트의 구조물은 콘크리트의 압축강도와 인장력을 조합하여 일체화시키므로써 크고 강한 부재를 얻는 효과가 있다. 하지만 이렇게 조성된 구조물에 균열이 생기게 되면 안전상의 위협을 받게 된다. 구조물에 균열이 발생되는 순간 대기중의 유해가스나 수증기 수분등이 철근에 접촉되어 철근이 부식되므로 인장력이 상실되기 때문에 돌이킬 수 없는 사태가 발생할 수도 있다. 따라서 콘크리트 구조물에 균열이나 열화, 박리 등의 현상이 발생되면 신속히 보수를 하는 것이 추가적인 피해예방 및 예산절감, 안전성을 확보할 수 있다. 콘크리트의 균열보수공법은 균열상태 및 용도에 따라서 저압주입식공법, 고압주입식공법, 메꿈식공법, 표면처리식공법을 적용한다.

콘크리트 중성화로 인하여 철근이 부식되고 표면에 탈락되는 현상이 발생한 부분에 고강도 폴리머수지 몰탈을 이용하여 콘크리트의 단면을 복구하거나 확대하여 구조물의 내구성을 복원하는 시스템이다.

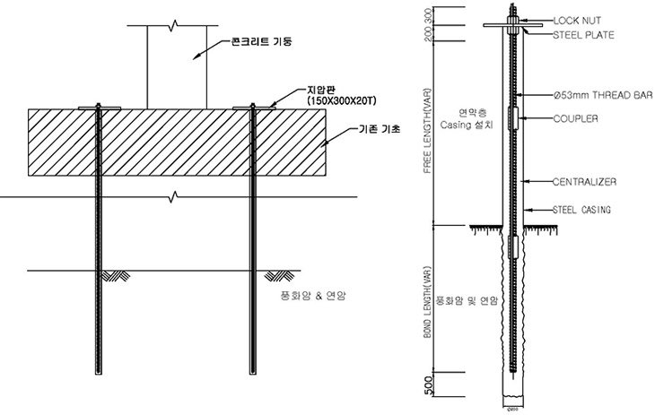
마이크로파일은 강재로 보강된 소구경(직경 300mm 이하) 비변위 말뚝으로 지지층에 근입된 강재의 마찰력에 의해 지지되며 비교적 큰 수직하중에 저항할 수 있다.
설계 여건에 따라 기존의 기성말뚝인 강관파일, PHC 파일을 대체하여 적용하거나 지반/말뚝 복합체로 이용될 수 있다.
마이크로파일은 소형 시공장비를 사용하기 때문에 접근하기 어려운 환경에서 시공가능하며 대부분의 토질조건에 적용 가능하다.
또한 시공과정에서 진동과 소음이 작고 충고가 낮은 곳에서도 시공이 가능함으로 기존 건축물의 기초보강에도 이용 가능하다.

전단벽은 바람이나 지진에 의한 수평하중에 대하여 구조물의 안전성을 확보하기 위하여 과거로부터 가장 보편적으로 사용되어 온 구조 시스템이다.
날개벽은 일반적으로 고층 주상복합건물 등에서 코어벽체와 조합되어 횡력저항시스템으로 많이 활용되고 있다.
코어벽체가 단독으로 횡력에 저항할 때보다 날개벽이 함께 저항할 경우가 횡강성이나 경제적인 면에서 효율적이기 때문입니다.
날개벽은 일반적으로 코어벽체에서 아웃리거 형태로, 외부 기둥에 연결되어, 구조물이 횡력에 대하여 큰 강성을 가지도록 한다.


내진보강 공사의 건식공법의 일종으로 철골후레임을 설치하여 내진보강하는 공법으로 내벽의 전단벽 부위 또는 외벽에 설치하는 공법으로 내부매립형과 외부노출형의 형태로 주로 사용하여 내진보강하는 공법이다.

옹벽은 토압에 저항해 흙이 무너지지 못하게 하여 배면 및 전면의 토지이용을 극대화시키기 위한 구조물로서 콘크리트 옹벽, 보강토 옹벽, 석축 등이 있습니다.
엘림주식회사는 시설물 안전법상의 법정시설물인 옹벽과 더불어 취약시설로 관리중인 노후옹벽에 대한 점검 및 진단을 통해 내구성평가, 안전성평가 등을 시행하여 시설물의 장기적인 공용성 확보를 위한 적절한 보수 · 보강 방안을 제시하고 필요시 보수 · 보강 실시설계를 시행하고 있습니다.
옹벽 법정 시설 구분
| 구 분 | 1종 | 2종 | 3종 *준공 후 10년 경과 시설물 |
| 옹 벽 | 해당사항 없음 | 지면으로부터 노출된 높이가 5m 이상인 부분의 합이 100m 이상인 옹벽 | 지면으로부터 노출된 높이가 5m 이상인 부분이 포함된 연장 100m 이상인 옹벽 |
| 지면으로부터 노출된 높이가 5m 이상인 부분이 포함된 연장 40m 이상인 복합식 옹벽 |
| 옹벽 진단 | 옹벽 진단 |
![]() | ![]() |
| 옹벽 침하 측량 | 균열 유지 관리 계측 |
![]() | ![]() |